Buduar jak Dzieło Sztuki w Izabelinie
Początek
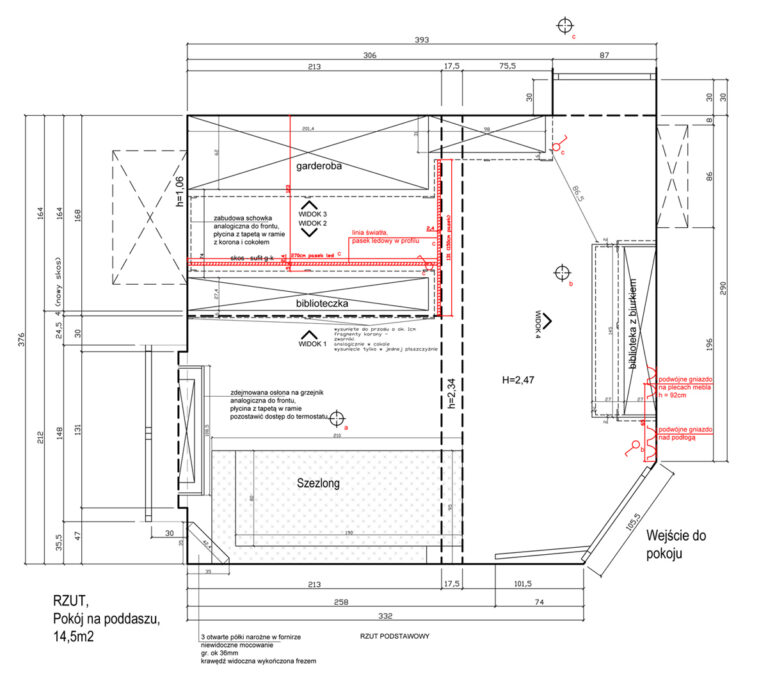
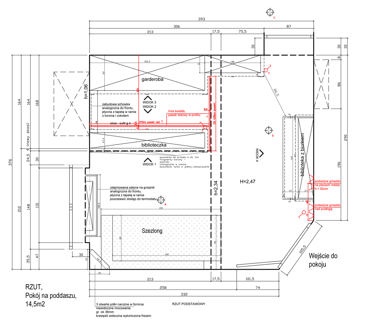
Projekt wnętrza obejmował niewielką, ale wyjątkową przestrzeń – 14,5-metrowy pokój na poddaszu z fragmentem skośnego sufitu. Dotychczas pełnił on funkcję składziku na niepotrzebne rzeczy, lecz jego nowa rola miała być zupełnie inna – elegancki gabinet i buduar właścicielki.
Mimo ograniczonego metrażu, założenia projektowe były ambitne: przestronna garderoba, biblioteka, miejsce do odpoczynku z wygodną kanapą oraz niewielkie, ale funkcjonalne biurko. Inspiracją dla palety barwnej stała się przywieziona z podróży reprodukcja secesyjnego plakatu Alphonse'a Muchy, której należało znaleźć odpowiednie miejsce w aranżacji.
Układ funkcjonalny
W tak małym wnętrzu liczył się każdy centymetr. Skośny sufit dodatkowo komplikował układ mebli, dlatego konieczne było precyzyjne zaplanowanie przestrzeni. Wszystkie meble wykonano na wymiar, łącząc lakierowane powierzchnie w odcieniu ecru z dębowym fornirem i złotawymi, patynowanymi akcentami. Dzięki temu udało się uzyskać efekt klasycznej elegancji inspirowanej stylem Louis Philippe, z subtelnym akcentem Art Deco.
Przestronne szafy garderobiane umieszczono pod skosem, a prowadzi do nich wąski korytarz, oddzielony od reszty pokoju reprezentacyjną biblioteką. Aby optycznie powiększyć tę przestrzeń i nadać jej lekkości, tylna ściana biblioteki została pokryta dużymi lustrami.
Dalekie podróże
Druga biblioteka, tym razem z wysuwanym biurkiem, znalazła się na tle malarskiej tapety Zoffany, przywołującej klimat dalekich podróży, szlaków handlowych i dawnych map. Wnętrze dopełniają unikalne detale – eleganckie, hiszpańskie włączniki i kontakty, a także subtelne lampy projektu Arturo Álvareza wykonane ze szkła Tiffany’ego. Centralnym punktem strefy relaksu stał się aksamitny, zielono-granatowy szezlong, wykonany na zamówienie. Całość równoważą lekkie, zwiewne dekoracje okienne, które dodają przestrzeni subtelności i delikatności.
Podsumowanie
Projektowanie takich miejsc to prawdziwa przyjemność. Choć pod względem powierzchni wnętrze jest niewielkie, robi ogromne wrażenie na każdym, kto je zobaczy. Klientka nazywa je dziełem sztuki – miejscem, gdzie może się wyciszyć, otoczyć pięknem i harmonią.
Największym wyzwaniem technicznym było zaprojektowanie skomplikowanej geometrii gzymsów i cokołów – realizacja tak precyzyjnych detali nie byłaby możliwa bez mistrzowskiej pracy doświadczonych stolarzy z wykształceniem wyższym z matematyki:)